Passar para o Conteúdo Principal
Voltar à página inicial

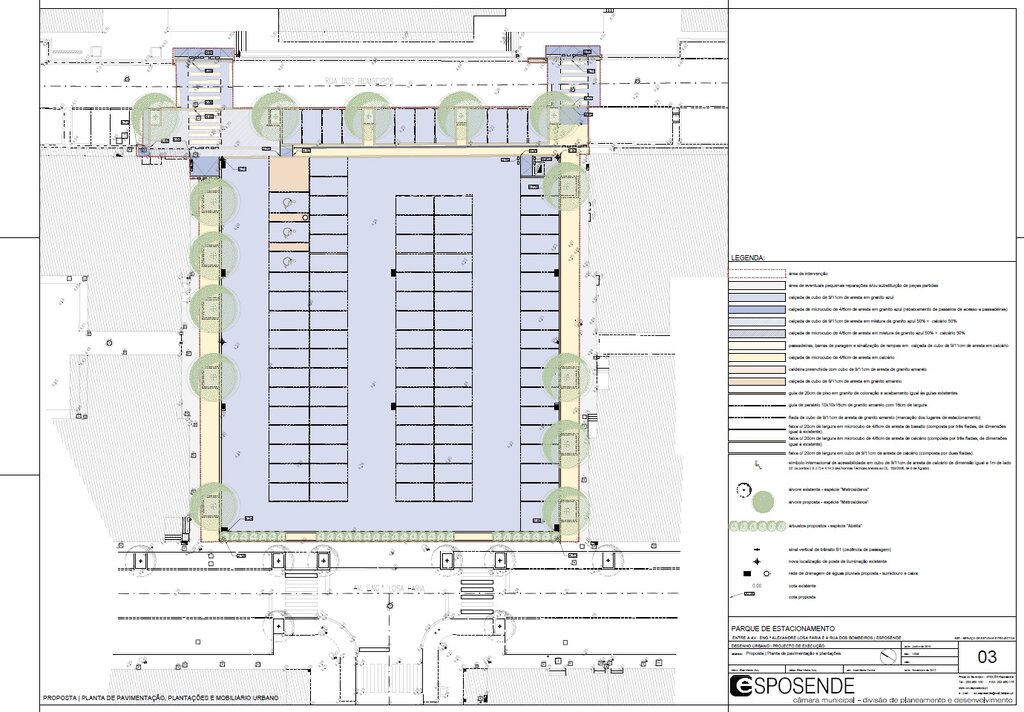
Parque de Estacionamento, Zona Central de Esposende

Localização:

União das freguesias de Esposende, Marinhas e Gandra.

Objetivos:

Criação de um parque de estacionamento entre a Avenida Engenheiro Losa Faria e a Rua dos Bombeiros de capacidade para 96 lugares, com possibilidade para realização de eventos mantendo a presença da vegetação.

Ponto de situação:

Concluído e executado.

  • imagem
  • imagem
Conteúdo atualizado em12 de abril de 2016às 19:28