Passar para o Conteúdo Principal
Voltar à página inicial

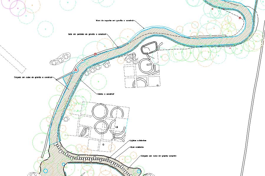
Requalificação do Monte do Sr. dos Desamparados

Localização:

União das freguesias de Palmeira de Faro e Curvos

 

Objetivos:

Melhorar as condições de visita à capela e à zona arqueológica, pavimentando e beneficiando a via existente para definir as zonas de circulação.

imagem

imagem

imagem

imagem

imagem

Conteúdo atualizado em12 de abril de 2016às 16:49