Passar para o Conteúdo Principal
Voltar à página inicial

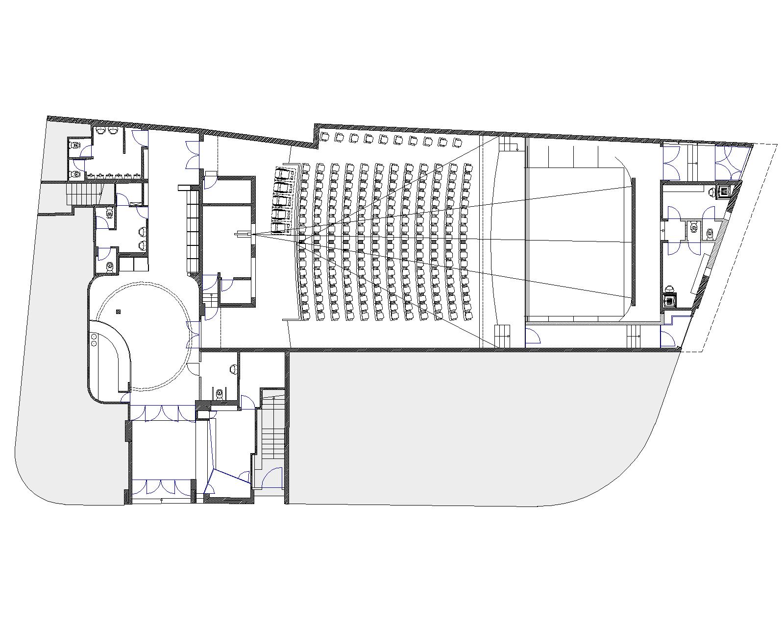
Beneficiação do Auditório Municipal de Esposende

Localização:

Largo Rodrigues Sampaio, União das freguesias de Esposende, Marinhas e Gandra.

Objetivos:

Adaptação do equipamento a pessoas de mobilidade condicionada - eliminação das barreiras arquitetónicas de acesso, construção de instalação sanitária e criação de lugares na plateia para estes utilizadores – e melhoria da imagem do espaço do átrio.

Ponto de situação:

Concluído e executado.

  • imagem
  • imagem




Conteúdo atualizado em12 de abril de 2016às 19:22