Passar para o Conteúdo Principal
Voltar à página inicial

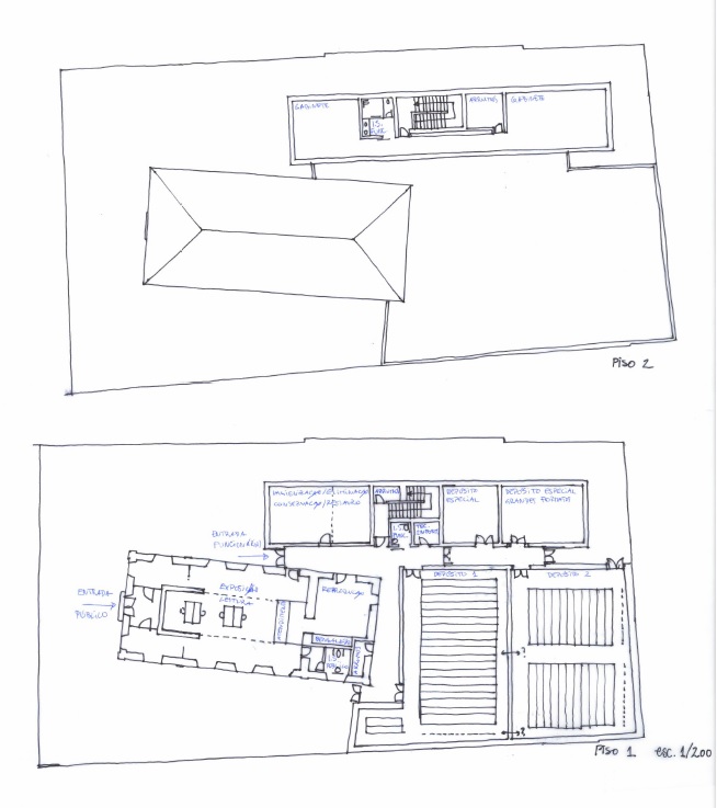
Arquivo Municipal

Localização:

Avenida Dr. Henrique Barros Lima, União das freguesias de Esposende, Marinhas e Gandra.

 

Objetivos:

Alteração e ampliação doantigo edifício da GNR, revestido de interesse arquitetónico para o concelho e que importa preservar, para instalação de um equipamento destinado Arquivo Municipal. Esta ação servirá não só para preservar o património arquivístico do concelho mas também o seu património arquitetónico.

 

Ponto de situação:

Em curso.

Conteúdo atualizado em12 de abril de 2016às 19:08